Bienvenue au 244, rue Laurier Située dans le quartier très recherché de l'Île-Bizard, cette superbe maison de coin de 3+1 chambres allie à merveille confort et style. Lumineuse et spacieuse, elle comprend un garage double, une piscine creusée au sel et un sous-sol entièrement rénové, idéal pour recevoir famille et amis. Magnifiquement aménagée et baignée de lumière naturelle, cette maison est prête à emménager. Une visite vous convaincra : un véritable bijou !
Bienvenue chez vous ! Ne manquez pas cette occasion unique de vivre à l'Île-Bizard, une communauté paisible et familiale, idéale pour élever une famille grandissante. Située sur un terrain d'angle ensoleillé et lumineux, cette maison se trouve dans l'un des secteurs les plus recherchés de l'Île-Bizard, à proximité d'écoles réputées, de parcs et de commodités essentielles.
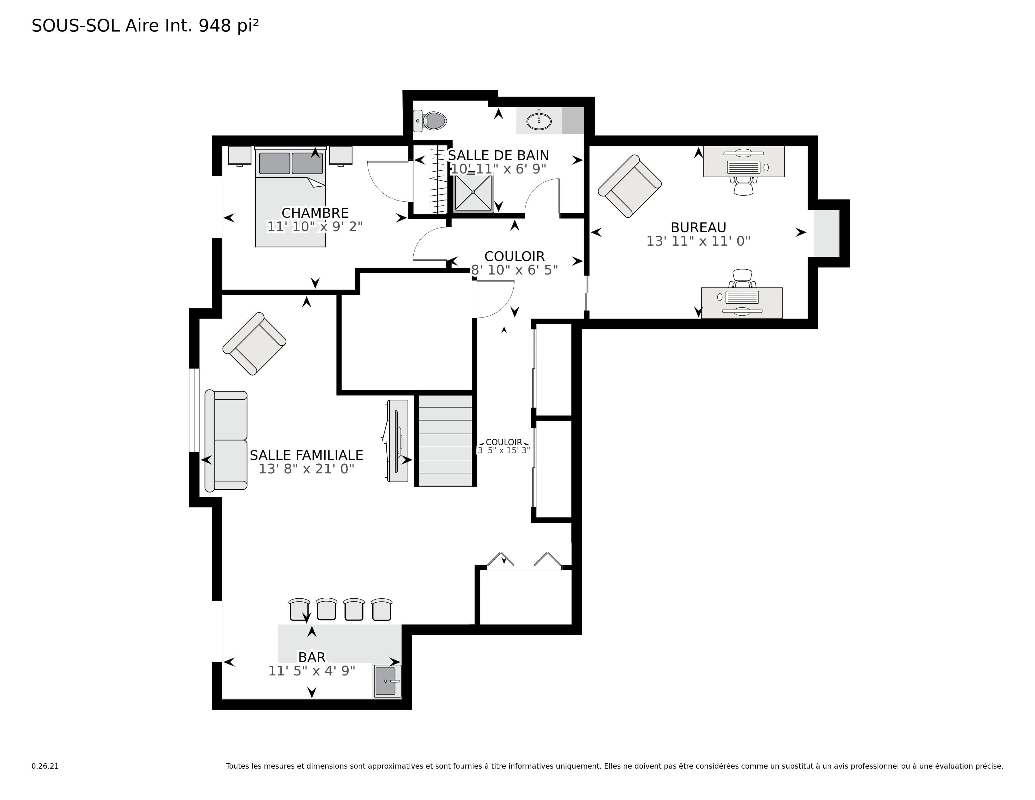
Découvrez l'intérieur et laissez-vous charmer par son aménagement chaleureux et invitant, avec un coin détente confortable juste à côté de la cuisine, idéal pour se détendre ou télétravailler. Le sous-sol entièrement aménagé comprend un bar, idéal pour recevoir amis et famille, ainsi que de nombreux rangements.
Offrant 3+1 chambres à coucher, dont un bureau à domicile, cette maison dispose également d'un garage double pouvant accueillir 4 voitures supplémentaires dans l'allée. Parmi les rénovations récentes, on compte une nouvelle toiture, un échangeur d'air et l'installation d'un aspirateur central.
À l'extérieur, profitez de votre havre de paix privé dans votre cour arrière avec une piscine creusée au sel chauffée, une toile et un escalier neufs installés cet été.
Une propriété clé en main offrant tout le nécessaire pour votre famille. Ne manquez pas votre chance de faire du 244 Laurier votre chez-vous!
Ce site utilise des services qui utilisent des cookies pour offrir une meilleure expérience et analyser le trafic. Vous pouvez en savoir plus sur les services que nous utilisons sur notre Politique de confidentialité.